VENDITA APPARTAMENTO AD.ZE CORSO MAZZINI

Caratteristiche Principali:
Palazzo Ristrutturato e Accogliente
- In una posizione ambita, questo appartamento si trova in un palazzo recentemente ristrutturato, con tetto e facciata appena restaurati, offrendo un'atmosfera di casa nuova in un contesto consolidato.
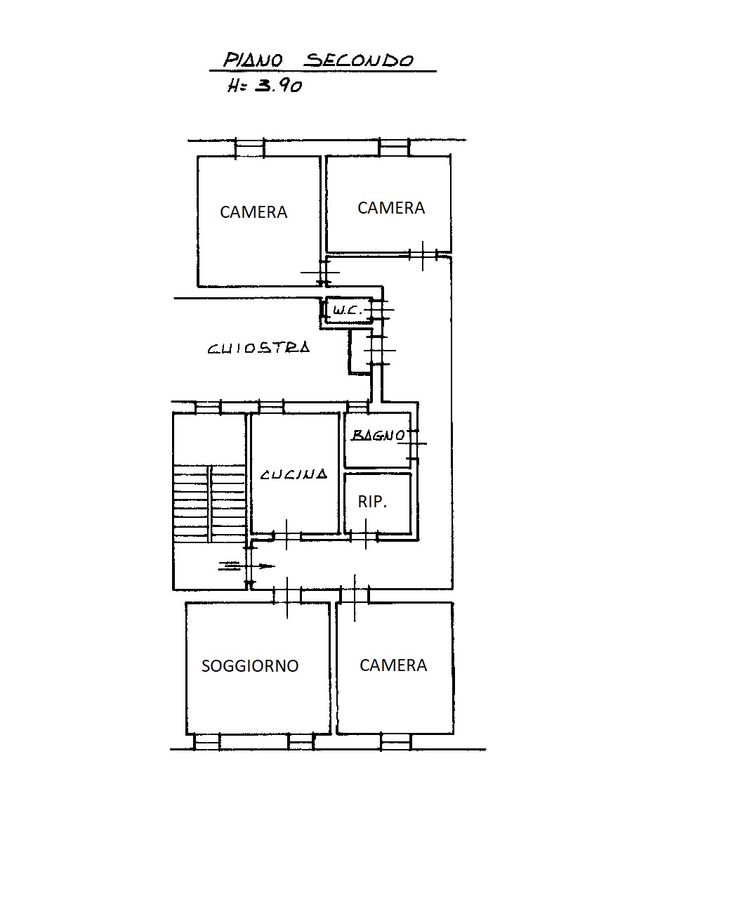
Spaziosità e Comodità al Secondo Piano
- Situato al secondo piano senza ascensore, questo ampio appartamento offre spazio sufficiente per una famiglia, garantendo comodità e tranquillità senza rinunciare alla praticità.
Condizioni Impeccabili e Disponibilità Immediata
- Presentato in condizioni impeccabili, questo appartamento è pronto per essere abitato sin da subito, offrendo la possibilità di trasferirsi senza perdita di tempo o stress aggiuntivo.
Dettagli Interni:
Layout Funzionale e Accogliente
- L'appartamento si apre con un ampio ingresso, conducendo a un luminoso soggiorno doppio e una cucina abitabile, ideale per momenti di convivialità e relax.
Tre Camere da Letto, Ideali per Tutta la Famiglia
- Con due spaziose camere matrimoniali e una camera di dimensioni medie, questa proprietà offre la versatilità necessaria per adattarsi alle esigenze di qualsiasi nucleo familiare.
Comfort e Praticità Ogni Giorno
- Completo di ripostiglio e doppi servizi, di cui uno con finestra, questo appartamento è progettato per offrire comfort e praticità, rendendo ogni giorno un piacere.
Caratteristiche Tecniche:
Infissi in Doppio Vetro/PVC e Riscaldamento Autonomo
- Dotato di infissi moderni in doppio vetro/pvc, l'appartamento garantisce un ottimo isolamento termico e acustico, mentre il riscaldamento autonomo offre controllo e comfort personalizzato.
Luminosità Naturale e Affacci Incantevoli
- Grazie alla sua esposizione e alle finestre generose, l'appartamento beneficia di una luminosità naturale che permea gli ambienti, offrendo una sensazione di benessere e serenità.
Prezzo: € 175.000








































