VENDITA UFFICIO VIA FIUME

Incredibile Opportunità di Ufficio in Via Fiume a due passi da Piazza Grande
Se stai cercando uno spazio professionale strategico nel cuore della città, non cercare oltre! Questo appartamento ad uso ufficio in Via Fiume offre una posizione invidiabile a pochi passi da Piazza Grande, circondato da banche e uffici pubblici.
Caratteristiche Principali:
Posizione Invidiabile: A breve distanza da Piazza Grande, godrai di una posizione centralissima che favorirà la visibilità del tuo business.
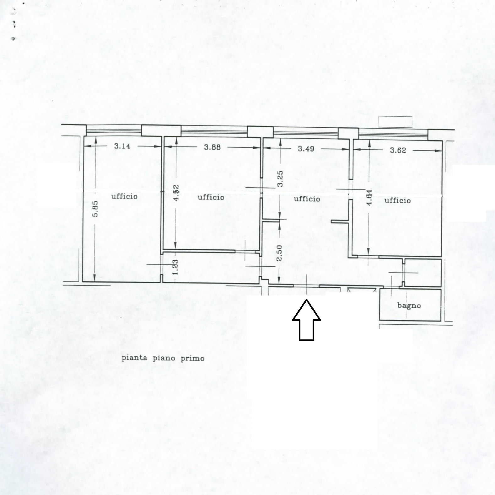
Ampio Spazio: L'appartamento, situato al primo piano, vanta circa 92 mq di superficie. Composto da 4 spaziosi vani comunicanti, sala d'attesa, ripostiglio e bagno, offre un ambiente di lavoro flessibile e funzionale.
Recentemente Ristrutturato: Con ottime finiture e attenzione ai dettagli, l'appartamento è stato recentemente ristrutturato, garantendo un ambiente moderno e accogliente per il tuo ufficio.
Tecnologia Avanzata: Totalmente cablato, con videocitofono e impianto elettrico a norma, questo spazio è all'avanguardia dal punto di vista tecnologico. L'impianto di riscaldamento e condizionamento con termoconvettori ad aria offre comfort in tutte le stagioni.
Pronto all'Uso: Nessun lavoro da fare! L'appartamento è subito libero e offre la possibilità di arredamento incluso nel prezzo, rendendo la tua transizione ancora più agevole.
Opzione d'Investimento: Oltre a essere un luogo ideale per il tuo business, questo spazio rappresenta anche un'ottima opportunità di investimento.
Classe Energetica G: Con un indice di prestazione energetica di 166,45 KWh/mq, questo immobile offre efficienza e sostenibilità.
Prezzo Imbattibile: €120.000
Non lasciarti sfuggire questa straordinaria opportunità di ufficio. Contattaci oggi per organizzare una visita e scoprire come questo spazio può soddisfare le esigenze del tuo business.






























